聯係我們
18903178757
- 地址:
- 河北(běi)省泊頭市富鎮開發區
- 傳真:
- 0317-8041117
- Q Q:
- 28505225
低壓噴吹脈衝袋式除塵器
(1) DSM型低壓噴吹脈衝(chōng)袋式除塵器
DSM型(xíng)低壓噴吹(chuī)脈衝袋(dài)式除塵器結構特點是采用嵌人式(shì)脈衝(chōng)閥,增大(dà)噴吹管直徑(jìng),以 噴嘴取代傳統的(de)噴孔,從而(ér)降低噴吹壓力,噴吹壓力為0.2?0.3MPa,增加(jiā)壓縮空氣氣量。 采用上進風方式(shì),含塵氣體由中(zhōng)箱體上部進人,依靠擋板進人濾袋。如圖(tú)6-61所示。其主 要(yào)尺寸和技術性能見表6-66。

濾袋與花板之(zhī)間用帶環的濾袋(dài)口密封,噴吹管與氣包之間有軟連接,換袋時可將其豎(shù)起。
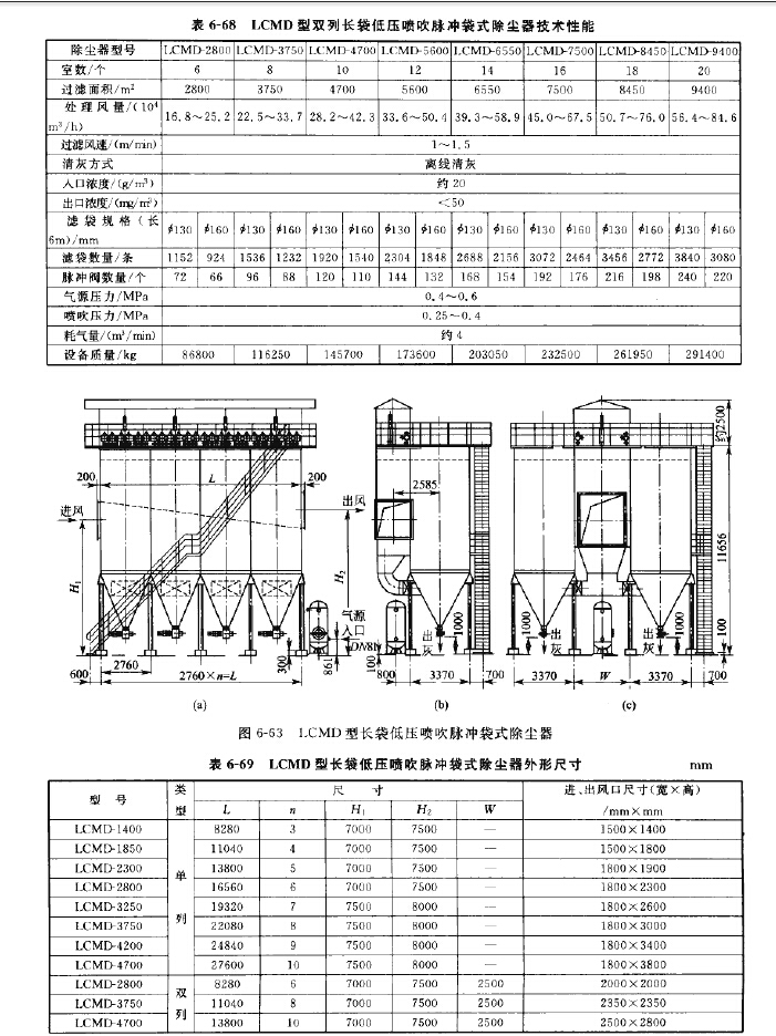
(2) LCMD型長袋低壓噴吹脈衝袋式除塵(chén)器
長袋低壓噴(pēn)吹脈衝袋式除塵器特(tè)點是濾袋長,數量多,設備緊湊,可處理較大量的含 塵氣體。濾袋長度可達6m,直徑一般為對30?160mm。袋口不設引射文氏(shì)管。結構見 圖 6-62。

LCMD型長袋低壓噴吹脈衝袋式除塵(chén)器分為單列和雙列(liè)兩種(zhǒng),其技術性能見表6-67和 表6-68,外形尺寸(cùn)見圖6-63和表(biǎo)6-69。




上一篇:氣環反吹袋式除塵器

